Last Updated on October 7, 2025 by Team Ideas24
Perth, Australia – Iredale Pedersen Hook
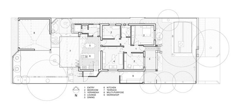
A 1930’s home in a great position but to small for the architect’s growing family. While the addition contrasts dramatically with the facade of the original home, it is almost invisible when viewed from the street.
This has been achieved by following the original roof profile and extending it in a gentle upward slope into the new addition. The result is a home that meets the family’s needs without intruding on the existing streetscape.
From the Architect:
the room to the interior explores what existed, years of layering, the art of construction, knowing what to keep, what to reveal and what to remove, knowledge gained from 13 years indulging in the past. rooms become the embodiment of a city, a microcosm of the qualities that make a great city.
the room to the garden focuses attention to the exterior at ground level, it is purposely heavy and grounded engaging with the earth, the section expands to the exterior, a series of folding screens layers the engagement.
a space of deep sensory delight, an architectural palette cleanser , transitions the ground and upper level, the eyes and nose are overpowered by the burnt and waxed plywood walls and the amber light cast by nan’s 1970’s sliding door.
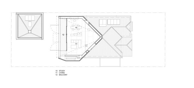
the room to the horizon filters the suburban roof tops, the screen abstracts the exterior world, the interior is one folded space formed through a play on the one point perspective that intensifies the horizon. openable screens create a direct view framing the horizon, releasing the interior volume. the space is cooled with an interpretation of the old coolgardie safe, water is dripped down the fabric cooling the outside air. the newly restored, 1956 iwan iwanoff guthrie residence cabinet finds a new home after 15 years of storage in numerous architect’s garages. the roughly painted ‘i love linda’ remains on the chimney, a rear window frames the distant saint mary’s church.
the room to the sky creates a vertical spatial experience, unlike st mary’s church our little spire opens up to the heavens.
Caroline Di Costa – Architect
Click on any image to start lightbox display. Use your Esc key to close the lightbox. ![]()


































As always, your opinions and comments are welcome. Just scroll down to the comments box below…


